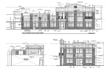
Construction on our new building is underway!  We will have offices on the second floor (and a rooftop deck), with reception and conference rooms on the first floor. Our new address will be 1626 Cole Street. Parking will be behind the building off of Myrtle Street. Can't wait to meet with clients in our new glassed-in conference rooms!

We're posting progress on our Instagram here: www.instagram.com/farrlawgroup/

FLG_7-21-2024
FLG_7-21-2024